Beschrijving
EXCLUSIEF WONEN IN RENKUM
Kleinschalig nieuwbouwproject met woningen en royale appartementen aan de Groeneweg / Utrechtseweg te Renkum
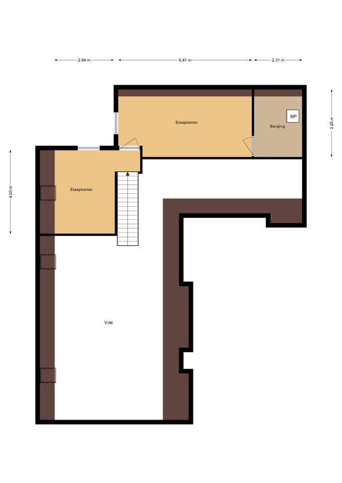
In een rustige en groene woonomgeving in Renkum verrijst binnenkort een fraai en kleinschalig nieuwbouwcomplex bestaande uit 3 royale appartementen met lift en 2 privé-parkeerplaatsen en 3 moderne eengezinswoningen van ca 124 - 139 m2, ontworpen met oog voor comfort en ruimte.
Het complex kenmerkt zich door een eigentijdse uitstraling met hoogwaardige materialen en een doordachte indeling. De appartementen zijn gelegen in een stijlvol gebouw. De combinatie van luxe, rust en modern wooncomfort maakt dit project bij uitstek geschikt voor wie ruim en zorgeloos wil wonen.
De eengezinswoningen beschikken over een praktische indeling en zijn ideaal voor gezinnen of stellen die op zoek zijn naar nieuwbouw met alle gemakken van deze tijd. Parkeergelegenheid is op eigen terrein aanwezig.
Dit project biedt een unieke woonbeleving waar kwaliteit, duurzaamheid en woongenot samenkomen – een plek waar u zich direct thuis voelt.
BIJZONDERHEDEN / ALGEMENE INFORMATIE
- Kleinschalig en exclusief nieuwbouwproject
- 3 eengezinswoningen
- 3 royale appartementen
- Energielabel A
- Appartementencomplex voorzien van lift
- Hoogwaardig afwerkingsniveau
- 2 Privé-parkeerplaatsen op eigen terrein
- Moderne installaties en energiezuinig ontwerp (o.a. warmtepomp en zonnepanelen)
- Start bouw: intentie voorjaar 2026
- Projectnotaris Notaris Luum te Wijchen
- Aannemer Bouwbedrijf Sleenhoff te Huissen
TECHNISCH:
- De woning wordt compleet opgeleverd met badkamer en sanitair.
- De woning wordt opgeleverd zonder keuken, maar is voorzien van alle standaard aansluitingen, waardoor u de mogelijkheid heeft om geheel naar eigen smaak en wensen uw droomkeuken te realiseren.
- Inclusief o.a. zonnepanelen, warmtepomp en vloerverwarming.
- U heeft alle vrijheid om uw eigen wand- en vloerafwerking te bepalen.
DISCLAMER
Deze informatie is met veel zorg samengesteld en deels voorzien van sfeerimpressies. De gerealiseerde impressies en het gerealiseerde plan kan afwijken van hetgeen eerder getoond, benoemd of aangegeven. Aan deze aanbieding, impressies, plattegronden en overige promotiemateriaal kunnen echter geen rechten en aansprakelijkheden worden ontleend.
WONEN IN RENKUM
Renkum staat bekend om zijn groene, rustige en dorpse karakter, gelegen aan de rand van de Veluwe en nabij de uiterwaarden van de Rijn. Het dorp biedt een prettige leefomgeving met dagelijkse voorzieningen, basisscholen, sportverenigingen en horeca binnen handbereik.
De ligging tussen Arnhem en Wageningen zorgt voor uitstekende bereikbaarheid, terwijl de directe omgeving uitnodigt tot wandelen en fietsen in de natuur. Renkum combineert rust en ruimte met een sterke verbondenheid met de regio – een ideale plek voor comfortabel wonen op hoog niveau.