Beschrijving
Op een prachtige locatie, aan de rand van het dorp Oosterbeek en de bosrijke Veluwezoom, staat dit herenhuis uit circa 1910. Met zijn gerenoveerde serre en prachtige balkons aan de voorzijde straalt deze woning klassieke elegantie uit. Het geheel toont van binnen bijzonder sfeervol dankzij de aanwezigheid van vele authentieke details en het geheel is uitstekend onderhouden. Deze karakteristieke villa is voorzien van alle moderne comfort en beschikt over ruime parkeergelegenheid (3 auto's) op eigen terrein. Een prachtige handgemaakte keuken, vier ruime slaapkamers, twee badkamers en een schitterend aangelegde tuin rondom de woning met daarin een multifunctioneel bijgebouwtje gesitueerd. Deze woning is van alle markten thuis! Op loopafstand ligt landgoed Mariendaal/Warnsborn met hun uitgestrekte bossen maar u loopt ook zo naar de Uiterwaarden van de Rijn. U kunt in de bijzondere omgeving van Oosterbeek eindeloos wandelen en fietsen. Daarnaast ligt het praktisch en dichtbij tal van voorzieningen, zoals het gezellige centrum van Oosterbeek, (basis-)scholen en sportaccommodaties. De bereikbaarheid is echt uitstekend te noemen, uitvalswegen A12/A50 zijn zeer vlot aan te rijden en tevens heeft Oosterbeek een eigen NS-treinstation.
Kelder:
Royale kelderruimte op stahoogte. Hier zijn ruime mogelijkheden voor een gebruik als stalling, wijnkelder, muziekruimte, enz. Ontluchting vindt plaats via een koekoeksraam.
Begane grond:
Royale entree/hal met authentieke Granitovloer, prachtige trappartij en met toegang naar een ruime overkapping in de achtertuin, toilet met fontein, gezellige woonkamer met originele schouw en-suite deuren naar een prachtige serre. Het glas in deze ruimte werd recentelijk voorzien van bijzonder vacuümglas. Nu geeft deze ruimte een originele uitstraling maar biedt het aan de andere kant het gewenste comfort van nu! Aparte eetkamer met doorloop naar luxe keuken in U-vorm, voorzien van inbouwapparatuur en deur naar de fraaie tuin met gezellige overkapping. Vanuit de hal is de overkapping en tuin eveneens bereikbaar.
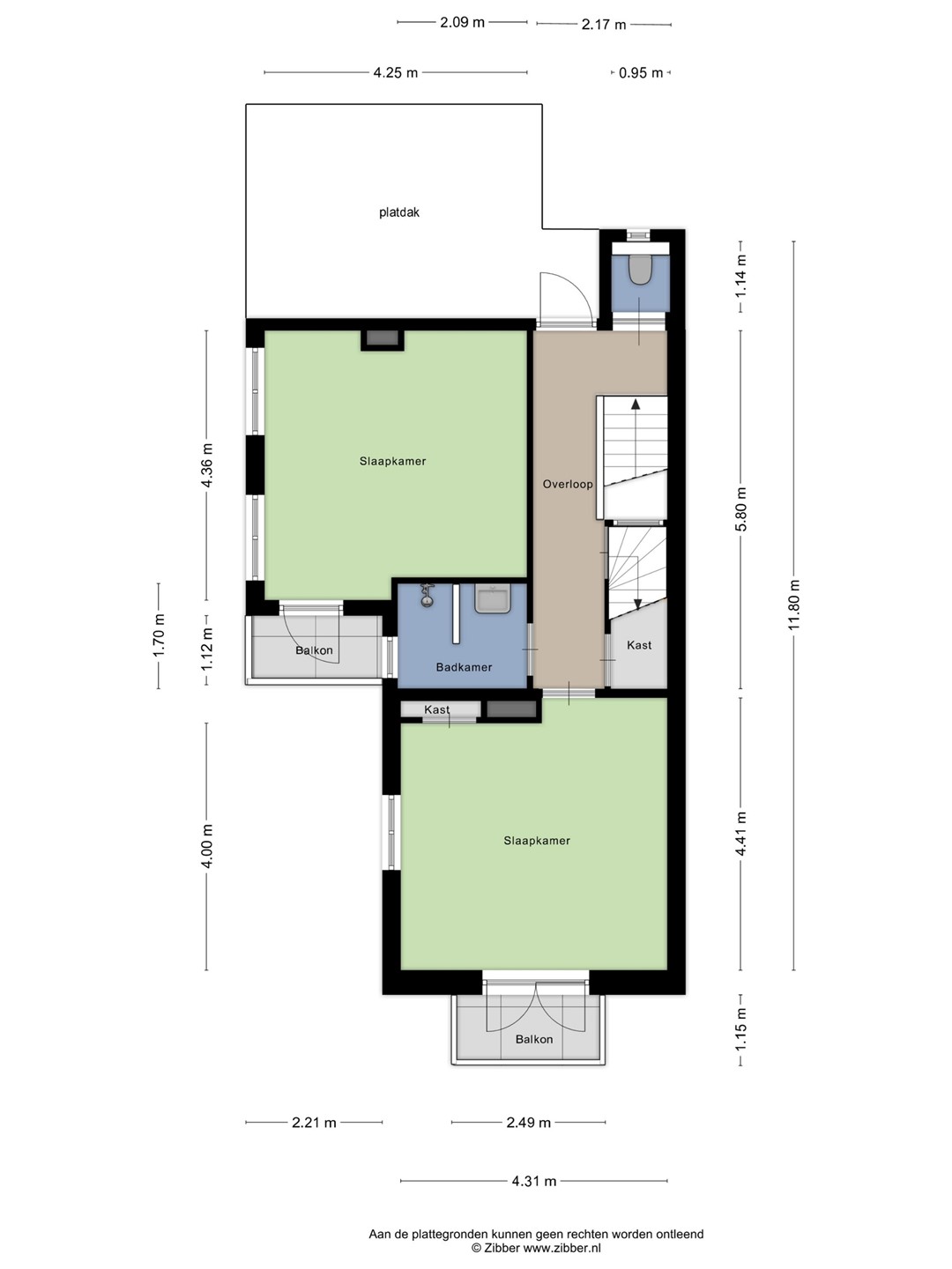
1e Verdieping:
Overloop, separaat toilet, badkamer met inloopdouche en wastafel, twee ruime slaapkamers beiden voorzien van een balkon aan de voorzijde. Vanaf de hal op deze woonlaag is het dak bereikbaar. Het dakterras is voorzien van sedum groendak. Via vaste trap naar:
2e Verdieping:
Royale overloop met lichtkoepel, wasmachine- en drogeraansluiting, opstelplaats voor de CV-ketel, twee ruime slaapkamers en ruime badkamer met hoekbad en wastafel.
Tuin:
Mooi aangelegde tuin voorzien van houten overkapping, verschillende borders met een diversiteit aan beplanting. De verschillende terrassen maken het geheel compleet. Vrijstaande stenen garage met zadelkap en legio aan mogelijkheden!
Bijzonderheden/ overige informatie:
- Bijzonder sfeervolle herenhuis
- Goed onderhouden en smaakvol afgewerkt
- Alle ruimtes voorzien van radiatoren met thermostaat regeling
- Eetkamer en keuken voorzien van vloerverwarming
- Originele details (glas-in-lood, granito vloer, paneeldeuren, en-suite deuren etc)
- Glas in lood in dubbel glas geplaatst
- Waterleiding, elektra en CV volledig vernieuwd in 2003
- Vier slaapkamers
- Twee badkamers
- Lichte serre voorzien van vacuümglas
- Riante, mooi aangelegde tuin
- Unieke locatie aan de rand van Oosterbeek en op slechts 4 km van Arnhem centrum
- Mooie groene omgeving
- Voorzien van zonnepanelen: circa 3200 Kwh/ pj (2024)
- Afsluitbaar hek naar achterom
- Houtwerk buiten in 2024 geheel gerenoveerd en geschilderd
- Keuken in 2023 gerenoveerd door interieurbouwer
- Zonnepanelen van 2018
Meer weten over deze woning?
Een droomwoning op een droomlocatie, zo kun je de Schelmseweg 6 wel omschrijven. Met een leefruimte van bijna 190 m2 en een schitterende tuin woon je hier geweldig. En op een kwartiertje fietsen geniet je van de gezelligheid van de stad of juist de stilte van de Veluwe. Neem contact met ons op voor een uitgebreide bezichtiging!