Beschrijving
In een rustige woonwijk in het groene Oosterbeek ligt deze verrassend ruime, super-functionele en royaal uitgebouwde twee-onder-een-kapwoning met riant souterrain met overkapping en deur naar een prachtige tuin op het Zuiden met vrijstaand houten kantoortje, diverse knusse terrassen en een parkeerplaats op eigen terrein. Door de multifunctionele ruimte in het souterrain is deze woning ideaal voor grotere gezinnen, thuiswerkers of hobbyisten. De woning combineert sfeervol wonen met moderne gemakken, is uitstekend onderhouden en is met een energielabel A klaar voor de toekomst. Dit resulteert in een laag energieverbruik en een comfortabel binnenklimaat.
De woning is gunstig gelegen ten opzichte van winkels, scholen, sportvoorzieningen en het gezellige centrum van Oosterbeek. Ook het NS-station en de uitvalswegen (A12/A50) zijn eenvoudig bereikbaar. De groene omgeving van o.a. park Mariendaal is op loopafstand bereikbaar en ook de nabijheid van Arnhem als bruisende stad maken deze locatie aantrekkelijk voor wie de rust en natuur waardeert van Oosterbeek maar ook geniet van de gemakken van de stad!
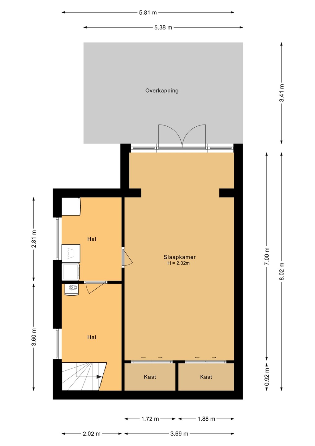
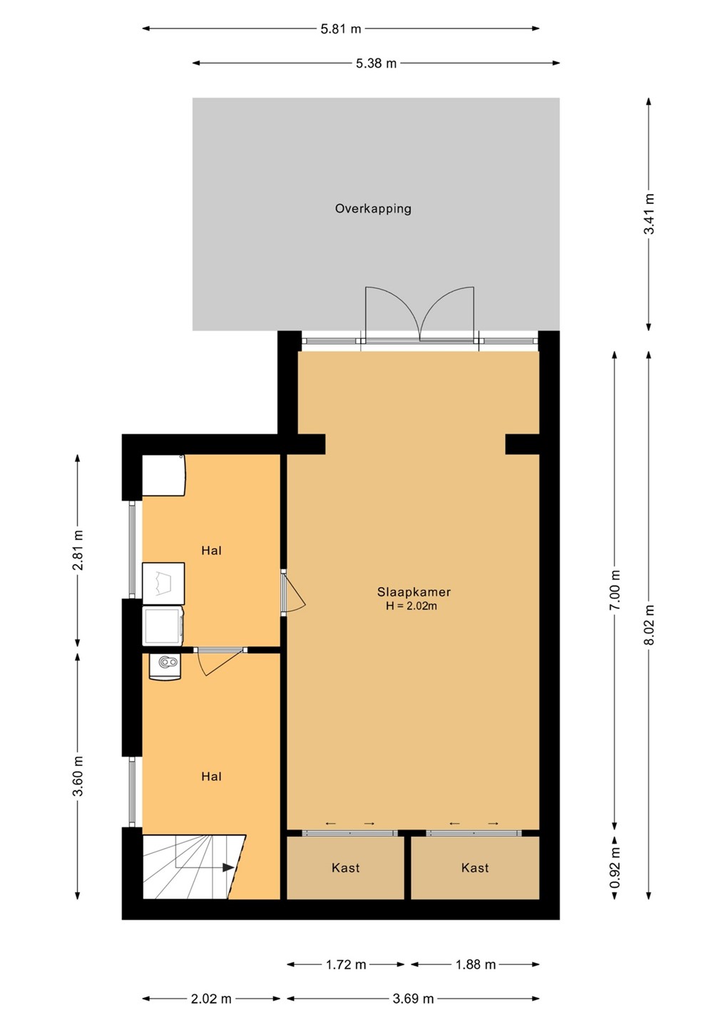
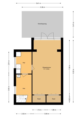
Souterrain:
Hal, ruime multifunctionele (werk/speel/slaap-)ruimte van ca. 26 m2 met ingebouwde kasten en openslaande deuren naar een overdekt terras en de prachtige tuin. De souterrainkamer is toegankelijk via een tussenhal met bijkeuken voorzien van wasmachine-/drogeraansluiting en met een mogelijkheid om een extra badkamer te creëren indien gewenst.
Begane grond:
Entree, ruime hal, hangend toilet, ruime woonkamer, voorzien van een strakke vloerafwerking met vloerverwarming, een moderne houtkachel en grote ramen die zorgen voor een prettige lichtinval. De woonkamer staat in open verbinding met een moderne strakke keuken uit 2023, uitgevoerd in neutrale kleurtinten en voorzien van een scala aan inbouwapparatuur waaronder een Quooker. Vanuit deze riante woonkeuken is er een fraai zicht over de achtertuin. Deze ruimte beschikt over een schuifraam zodat u de achterzijde naar de tuin open kunt zetten en geniet van de zon en frisse lucht. Hier is het heerlijk toeven...
1e Verdieping:
Overloop, twee ruime en praktisch in te delen slaapkamers, eenvoudige badkamer met ligbad, toilet en dubbele wastafel. Via wenteltrap naar:
2e Verdieping:
Overloop met opstelplaats voor de moderne CV-installatie d.m.v. hybride warmtepomp (uit 2023), twee ruime slaapkamers beiden voorzien van een dakkapel waardoor er verrassende ruimten zijn ontstaan! Deze slaapkamers kunnen eenvoudig aangepast worden naar 1 grote slaapkamer of een slaapkamer en 2e badkamer.
Buitenruimte:
De woning beschikt over een ruime voortuin met parkeergelegenheid op eigen terrein en een verzorgde achtertuin met overkapping, diverse terrassen en veel privacy. Hier staat ook een vrijstaande houten kantoor met WIFI aansluiting / schuur opgesteld. Deze ruimte is verrassend goed geïsoleerd en van hoge kwaliteit, voorzien van een Sedumdak.
Ook het dak van de aanbouw is voorzien van een Sedumdak in combinatie met 12 zonnepanelen. Deze genereren samen in de range van 3.4 mwh per jaar.
Bijzonderheden/ overige informatie:
- Bouwjaar 1963
- Woonoppervlakte: 163 m²
- Perceeloppervlakte: 253 m²
- Inhoud: 528 m³
- 6 kamers, waarvan 5 slaapkamers
- Energielabel A
- Moderne keuken uit 2023
- Parkeren op eigen terrein
- Rustige, groene ligging
-12 zonnepanelen uit 2023 / eigendom
-Schilderwerk uit 2025
-Aanbouw uit 2023 en dakkapel uit 2019
- Zuidkant van de woning voorzien van zonwering en screens bij de uitbouw.