Beschrijving
Maak kennis met dit ruime 3-kamer appartement, gelegen in de groene wijk Over het Lange Water. Het appartement beschikt niet over één, maar over twee balkons, waar je volop kunt genieten van de omgeving met diverse waterpartijen. Dit alles onder de zorg van een actieve VvE, wat bijdraagt aan een prettig en zorgeloos wooncomfort. Plan vandaag nog een bezichtiging en ervaar het zelf.
Begane grond:
Brievenbussen en video-/intercominstallatie, trappenhuis, liften en toegang tot de bergingen.
1e Verdieping:
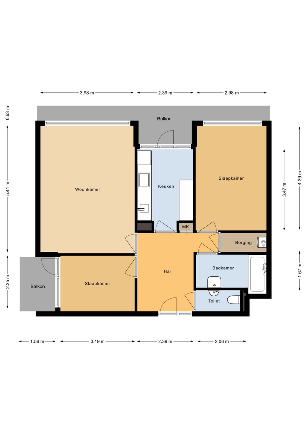
Ruime hal, lichte woonkamer met toegang tot één van de balkons aan de voorzijde (over de gehele breedte). Het appartement telt twee ruime slaapkamers, waarvan één met een eigen 2e balkon met uitzicht over het water. De dichte keuken is functioneel ingericht, voorzien van apparatuur en biedt ook toegang tot het balkon aan de voorzijde. De badkamer is voorzien van een bad en wastafel.
Wonen in Over het Lange Water betekent comfortabel en centraal wonen. Het winkelcentrum Presikhaaf bevindt zich op korte afstand voor al je dagelijkse boodschappen. Dankzij de goede busverbinding sta je binnen enkele minuten in het centrum van Arnhem. Hogescholen, winkelvoorzieningen en uitvalswegen richting A12 en A325 bevinden zich op korte afstand.
Bijzonderheden:
- Gelegen in de groene wijk Over het Lange Water
- Ruim 3-kamer appartement met twee balkons
- Actieve en gezonde VvE (€ 248,60 per maand)
- Complex voorzien van lift en eigen berging
- Twee slaapkamers, waarvan één met balkon
- Extra bergruimte met boiler
- Gunstige ligging nabij winkelcentrum, openbaar vervoer en uitvalswegen
Ben je enthousiast geworden? Neem dan snel contact met ons op voor een bezichtiging en ontdek zelf het comfort en gemak van dit fijne appartement. Misschien wordt dit wel jouw nieuwe thuis!