Beschrijving

*** OPEN HUIS ***  
U bent van harte welkom!
Zaterdag 7 maart 10.30 - 13.00 uur 

Vrijstaande, geschakelde nieuwbouwwoning met garage en een royale, op het zuidoosten gelegen achtertuin. Deze moderne woning is zeer energiezuinig (BENG) en voorzien van energielabel A+++, een warmtepomp en vier zonnepanelen – aan alles is gedacht.

Denkt u aan nieuwbouw, maar ziet u op tegen een lange wachttijd of dubbele woonlasten? Dan biedt deze woning uitkomst. De oplevering gaat op korte termijn plaatsvinden. 

De woning ligt in een rustig en verkeersarm hofje, op korte afstand van het centrum van Renkum. Het ontwerp combineert een eigentijdse uitstraling met traditionele elementen, waarbij comfort en duurzaamheid centraal staan. Hier woont u op een prachtige locatie, dichtbij de bossen en uiterwaarden én op loopafstand van alle voorzieningen in het centrum.

AI-visualisaties
Bij een aantal beelden in deze presentatie is gebruik gemaakt van AI-visualisaties, onder andere voor de tuin. Deze impressies zijn bedoeld om een realistisch beeld te geven van de mogelijke inrichting en uitstraling van de buitenruimte. De getoonde afbeeldingen dienen ter inspiratie.

Details:
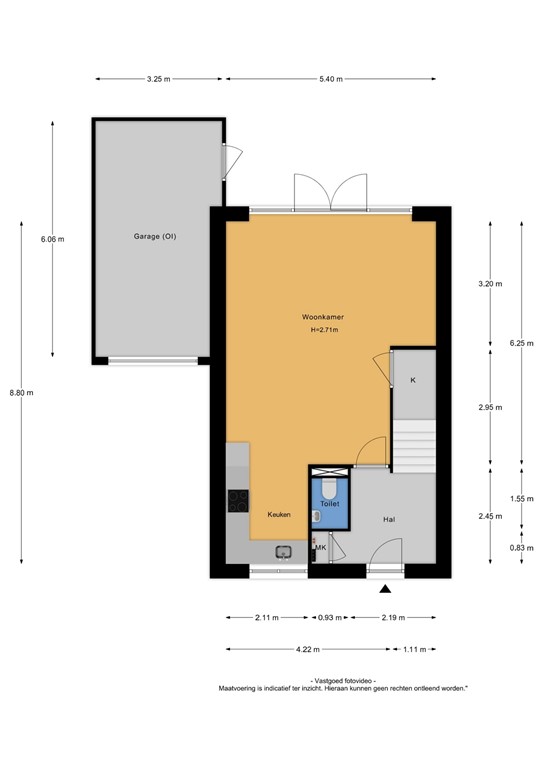
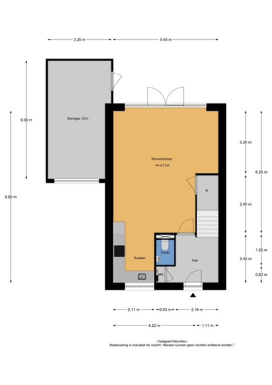
Woonoppervlakte: 124 m2
Perceeloppervlakte: ca. 275 m2
Bouwjaar: 2025
Energielabel: A+++ (o.v.b. van BENG controle)
Duurzaam: 4 zonnepanelen, warmtepomp en WTW-installatie.
Meerwerk: koper heeft nog keuzevrijheid met betrekking tot de afwerking van de badkamer, het toilet en de binnendeuren/kozijnen.
Koopsom: genoemde koopsom is exclusief bouwrente over de resterende maanden

Wilt u graag het comfort en de zekerheid van nieuwbouw maar wel in een mooie, bestaande woonomgeving? Dat kan! Op steenworp afstand van de Renkumse dorpskern wordt dit knusse hofje gerealiseerd. De woningen zijn geheel gasloos (Bijna Energie Neutraal - BENG) en daarnaast voorzien van 4 zonnepanelen en een warmtepomp. Dat betekent comfortabel en duurzaam wonen.

Het knusse hofje is alleen bereikbaar via de Dorpsstraat, zodat er een autoluw woonerf ontstaat waar auto’s te gast zijn. Zo kunnen de kinderen veilig op straat spelen en hoeft u zich geen zorgen te maken over de energierekening of het onderhoud van uw woning.

De woningen zijn in een eigentijdse, traditionele stijl ontworpen. Door te werken met bakstenen in lichte kleuren in een gedetailleerde compositie krijgt het hofje een vriendelijke en dorpse uitstraling. Daarnaast voldoen de woningen aan de nieuwste normen voor duurzaamheid en zijn gasloos en Bijna Energie Neutraal (BENG).

RENKUM EN OMGEVING

Daar waar de bossen en de heuvels van de Veluwe overgaan in het weidse rivierlandschap van de Neder-Rijn, ligt het mooie dorp Renkum. Het dorp is omgeven door natuur en een hele fijne groene woonomgeving waar je heerlijk kunt wandelen en fietsen. Ook voor kinderen is het fijn om bij de natuur op te groeien en vrij te kunnen spelen. Renkum heeft een autovrije dorpskern met een groot aanbod aan winkels en speciaalzaken, waar je rustig je dagelijkse boodschappen kan doen. Sporten, leren en ontspannen kan in het gloednieuwe Doelum, met een groot scala aan sport- en cultuurverenigingen. Ook voor buitensport zijn in Renkum vele mogelijkheden. Steden als Wageningen, Arnhem en Nijmegen zijn op korte afstand van Renkum en eenvoudig te bereiken. Renkum beschikt over goede busverbindingen en ligt gunstig ten opzichte van de A50.

Renkum ligt in een unieke, natuurlijke omgeving met vele andere mooie plekken, zoals Doorwerth met het middeleeuwse kasteel en het schilderachtige Oosterbeek. Het Renkums Beekdal is een bijzonder natuurgebied en ligt pal naast het dorp. Hier vind je bijzondere dieren en planten, beken en sprengen, wandel je langs landgoederen en heb je uitzicht over de uiterwaarden. Voor de kinderen is er ook veel te beleven in het Kabouterbos en in de waterspeeltuin.

Op loopafstand van het hofje vind je landgoed Oranje Nassau’s Oord met de befaamde Ommuurde Tuin, hertenweide en uitgestrekt bosgebied. Of wandel door de uiterwaarden van de Jufferswaard met haar wilde paarden. De keuze is aan jou, in Renkum is de natuur altijd dichtbij.


OVERIGE INFORMATIE:
- projectnotaris VPVA
- bouwrente van toepassing
- Architectenbureau CONTEXTUREARCHITECTS

Kenmerken