Beschrijving

*** De genoemde prijs is een VANAF-prijs. Biedingen boven dit bedrag worden door verkoper serieus in overweging genomen. ***

Op zoek naar een karaktervolle woning met moderne gemakken én een ideale ligging? Deze charmante jaren ’30 helft van een dubbele woning combineert een authentieke uitstraling met hedendaags comfort. De woning is in de afgelopen jaren met zorg gemoderniseerd en verduurzaamd.

De ruime woonkamer met erker biedt veel lichtinval. Met een ruime oprit voor 3 auto's, een carport én een heerlijke achtertuin op het oosten geniet je hier elke dag van rust en ruimte.

Gelegen op een centrale locatie in Oosterbeek, op loopafstand van basisscholen, het sfeervolle park ‘Bato’swijk’ en het gezellige dorpscentrum. Hier woon je in een prettige en groene omgeving, met alle voorzieningen binnen handbereik.
Kortom: een karakteristieke woning op een toplocatie, klaar voor de volgende stap!

Algemeen:
- Bouwjaar: 1926
- Oprit met carport en parkeerplaats op eigen terrein
- CV ketel, bouwjaar februari 2021
- 8 zonnepanelen (januari 2023 - 3200 kwh)
- Spouwmuur gedeeltelijk geïsoleerd (voor- en achterzijde) juli 2023
- Plat dak vervangen september 2023
- Noklijsten voorjaar 2025 vervangen 
- Geïntegreerde zonnescherm voorzijde

Kelder: 
Ruime en droge provisieruimte van ca. 5m2 op stahoogte.

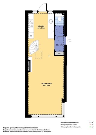
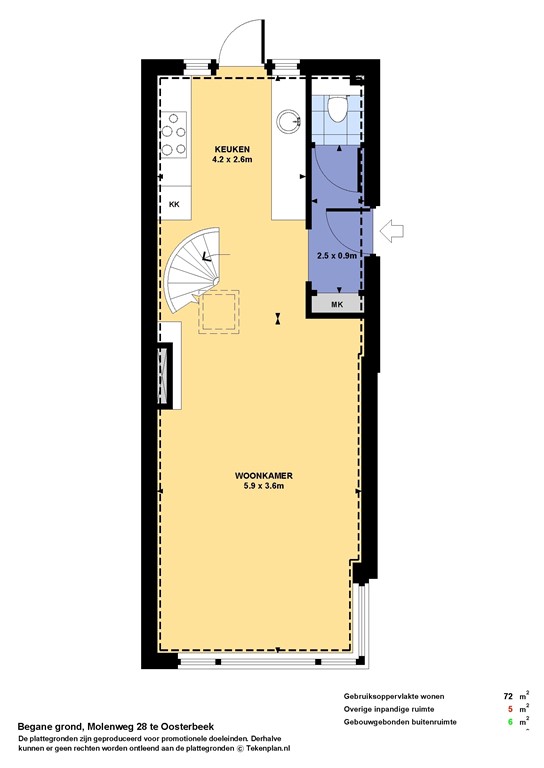
Begane grond:
Entree/ hal met garderobe, toilet en doorgang naar een gezellige woonkamer. Door wijziging van de indeling is de woonkamer in de loop der jaren vergroot en tevens is een erker van circa 6 m2 aangebouwd, waardoor de woonkamer extra veel licht en ruimte verkrijgt. Op de vloer in de woonkamer ligt een laminaatvloer, welke de gezellige sfeer creëert samen met de centraal in de ruimte opgestelde open haard. De luxe keuken is geplaatst in 2021 en beschikt over diverse inbouwapparatuur (o.a. inductie kookplaat). Vanuit deze ruimte is de achtertuin bereikbaar. Via een open trap in de woonkamer naar:

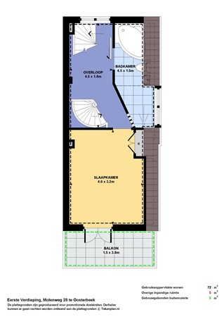
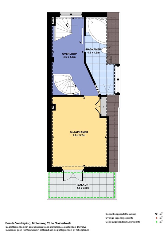
1e verdieping:
Overloop, ruimtelijke slaapkamer met airco en openslaande deuren naar het balkon aan voorzijde. De moderne badkamer beschikt over een ligbad, vaste douche en 2e toilet. Het geheel is voorzien van een dakkapel waardoor er extra licht en ruimte aanwezig is. Via vaste trap naar:

2e verdieping:
De open zolder heeft drie dakramen. De ruimte is verbouwd en wordt gebruikt als 2e slaapkamer. Deze ruimte is functioneel ingedeeld en maakt een speelse indruk. Ook de CV-combiketel (2021) is hier opgesteld.

Tuin:
Een ideale, knusse tuin van ca. 60 m² op het oosten combineert optimaal zonlicht in de ochtend/middag met beschutting in de avond. De borders geven de tuin een speels karakter.

Kenmerken