Beschrijving

Deze bijzondere, volledig gerenoveerde en goed onderhouden helft van dubbele woning met geweldig zonneterras, ruime garage en omliggende tuin heeft uitstraling! Het geheel beschikt over een energielabel B en ligt aan een bekende straat in Oosterbeek. Je ervaart een ruimtelijke, afwisselende plattegrond met veel mogelijkheden voor inrichting. Niets is standaard in deze woning, als geheel heeft het huis een gezellige sfeer en is het goed onderhouden. De ruime woonkamer met hoog plafond, een werkzame (hout-)haard en een zee aan daglicht maken deze leefruimte tot iets bijzonders. Hier wil je graag zijn...De gezellige woonkeuken met toegang tot een ruime garage maken het plaatje hier compleet. De ligging van deze fijne woonwijk is ideaal: dichtbij het centrum, het treinstation en de uitvalswegen naar de snelweg. Om de hoek liggen een trapveldje en een speeltuintje. Het bekende Park Hartensteijn ligt op korte afstand van de woning.

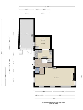
Begane grond:
Entree/ hal met garderobe, toilet, trap naar de bovenverdieping en toegang tot een ruime provisiekelder op stahoogte. Sfeervolle woonkamer met opvallend veel daglicht door de grote raampartijen v.v. glas-in-lood ramen, geplaatst in dubbel glas. De woonkamer is v.v. een fraaie visgraat parketvloer met vloerisolatie. De houtkachel voelt als een logisch middelpunt. De woon-/eetkeuken beschikt over een net keukenblok met inbouwapparatuur waaronder een Quooker met bruiswaterfunctie. Ook is hier een trapkast aanwezig en een praktische kast voor de wasmachine- en droger. Deze keuken heeft een lichtkoepel voor extra daglicht en een interne deur naar de garage.

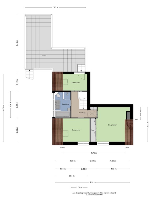
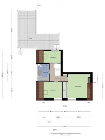
Eerste verdieping:
Overloop met vaste kast. Drie slaapkamers waarvan 1 met deur naar het `prachtige dakterras. De hoofdslaapkamer heeft nog de fraaie, originele spanten in het zicht. Ook is deze ruimte voorzien van een vaste kast en airconditioning. De nette badkamer is ruim van opzet en verkrijgt extra licht door de dakkapel. De ruimte is voorzien van een ligbad, 2e toilet, dubbele wastafel en een separaat opgestelde douche. Via Vlizotrap naar:

Zolderverdieping:
Deze ruimte is geïsoleerd en voorzien van dakramen voor daglichttoetreding. Momenteel is het in gebruik als werk-/studeerkamer met in de nok stahoogte. Er is verwarming aanwezig en extra bergruimte met verrijdbare bakken voor opslag.

Dakterras:
Het dakterras is vanaf buiten, met een trap, bereikbaar en ook vanuit 1 van de slaapkamers. Het terras is zeer royaal (40m2), heeft een heerlijke en zonnige ligging tot in de avonduren en biedt veel privacy en uitzicht op de boomtoppen. 

Garage:
De garage heeft prima afmetingen (zie tekeningen), is zowel buitenaf alsmede binnendoor bereikbaar, heeft verwarming en elektra. De garage biedt mogelijk uitgebreide mogelijkheden voor een alternatief gebruik zoals praktijk-/kantoor aan huis, mantelzorg of natuurlijk voor stalling van uw roerende zaken.

Tuin:
De voor -en zij tuin hebben een heerlijke rustige ligging en zijn fraai aangelegd.

Overige informatie: 
-Energielabel B
-Schilderwerk uit 2022 (professioneel uitgevoerd)
-Riolering buitenshuis werd vervangen in 2016
-8 zonnepanelen aanwezig

Kenmerken