Beschrijving

In het kleinschalige en uitstekend onderhouden appartementencomplex Dreijerheide ligt dit moderne en hoogwaardige 3-kamerappartement met een royaal balkon, eigen berging en een privéparkeerplaats. Het complex is gebouwd in 2008 en straalt comfort en kwaliteit uit. Het appartement is gelegen op de derde verdieping (van vier) en biedt een fraai uitzicht over de omliggende woonwijk en het aangrenzende bos. De rustige ligging aan de zuidzijde van Oosterbeek zorgt voor veel privacy en een prettige woonbeleving. 

Het centrum van Oosterbeek, met een divers aanbod aan winkels, supermarkten en horecagelegenheden, evenals het trein- en busstation, bevinden zich op loopafstand. De groene omgeving nodigt uit tot wandelen en fietsen, terwijl ook de stad Arnhem snel en eenvoudig bereikbaar is.

Kortom: een comfortabel en veelzijdig appartement op een geliefde locatie, geschikt voor een breed publiek.

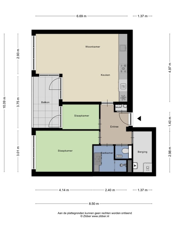
Indeling:
Entree, ruime hal, bergkamer met provisieruimte, opstelplaats voor de wasmachine- en cv-installatie, modern (hangend) toilet met fontein. De lichte L-vormige woonkamer geeft toegang tot een ruim en gezellig overdekt balkon (circa 8 m2) met prachtig vrij uitzicht door de ligging op de 3e verdieping. Door het gebruik van het vele glas (in kunststof kozijnen) geeft de kamer een ruimtelijk effect met veel daglicht en uitzicht! Ook is vanaf het balkon een slaap-/werkkamer toegankelijk. De open keuken is gedeeltelijk voorzien van vernieuwde apparatuur in 2023 en maakt een frisse, moderne indruk. Het geheel is functioneel en voorzien van diverse inbouwapparatuur.

Het appartement beschikt over twee slaapkamers, beiden met uitzicht, waarvan één met toegang tot het balkon. De badkamer is uitgevoerd met een wastafelmeubel en beschikt over een ruime douche. Het gehele appartement is afgewerkt met een fraaie laminaatvloer en strakke wandafwerking.

Overige informatie:
-Privé parkeerplaats inclusief de prijs;
-Gelegen in een bosrijke omgeving, nabij winkels. NS-station en uitvalswegen;
-Volledig en optimaal geïsoleerd (energielabel A). De VVE heeft zonnepanelen op het dak van het complex;
-Servicekosten € 183,- per maand; met een uitstekend functionerende VVE;
-Lage maandlasten aan elektra en gas!
-Berging in de onderbouw (met elektra en zeer droog);
-Additionele afgesloten fietsenstalling aanwezig;
-Het appartement is voorzien van geïntegreerde, automatische screens!

Kenmerken