Beschrijving
Royaal verbouwde helft van dubbele jaren '30 woning met parkeergelegenheid op eigen terrein en een diepe achtertuin op de zon gelegen. Deze woning blinkt uit in ruimte. Wat een mogelijkheden en ruimte biedt bijvoorbeeld het grote souterrain. Deze ruimte heeft aanpassingen nodig maar wat een kans is dit! Ook in de tuin zijn de mogelijkheden enorm. Het geheel is bovengemiddeld ruim en ligt aan een bekende straat in een rustig en geliefd deel van Oosterbeek. Deze woning werd sinds 2014 gerenoveerd en biedt niet alleen sfeer maar ook veel praktische voorzieningen die het leven comfortabel maken. Ligging op korte afstand van de bossen, sportgelegenheden, het NS-station, uitvalswegen en de uitgebreide winkelvoorzieningen van Oosterbeek.
Souterrain:
Provisieruimte met vaste kast en ruimte met regenwateropslag (2000 liter), technische ruimte, voorbereiding voor een extra toilet en douche en toegang naar een multifunctioneel souterrain van ongeveer 45 m2 met prettige plafondhoogte, keukenblok (bar) en lichtinval van buitenaf. Vanuit een schuifpui in deze ruimte is er via een trap toegang naar het terras en de achtertuin. De kansen en opties voor deze ruimte zijn echt groot!
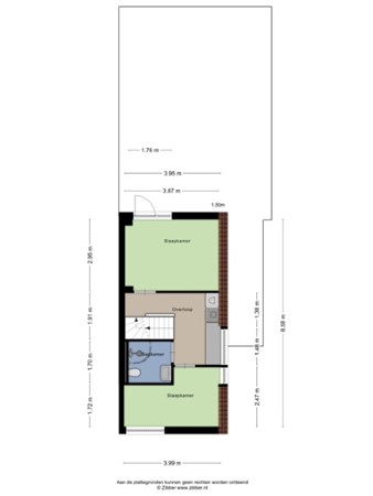
Begane grond:
Entree, ruime ontvangsthal, modern toilet met fontein, meterkast met een uitgebreide set automatische groepen, trapopgang, ruime slaapkamer op begane grond, badkamer met (regen-)stortdouche, infraroodlampen, enzovoorts, 2e toilet en dubbele wastafel met meubel. Vanuit de hal is een open woonkeuken bereikbaar. Het keukenblok werd geplaatst in 2013, is ruim van opzet en beschikt over vaste keukenkast met inbouwapparatuur (Bosch), groot kookeiland met o.a. geïntegreerde spoelbak, kookplaat en afzuigkap. De woonkamer verkrijgt veel daglicht, is ruim van opzet en afgewerkt met een eikenhouten parketvloer met vloerverwarming. Vanuit de woonkamer is er via een schuifpui toegang naar de tuin met overkapping en gezellige bar.
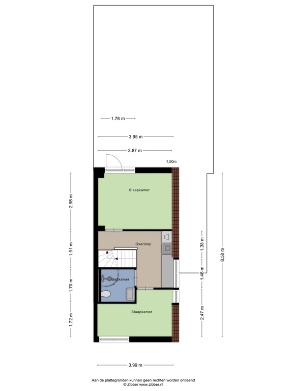
1e Verdieping:
Overloop met wasmachine-/drogeraansluiting, ruime slaapkamer aan de achterzijde en een slaap-/werkkamer van redelijk formaat aan de straatzijde, 2e badkamer met douche, 3e toilet en wastafel met meubel. Via een vaste trap naar:
Zolderverdieping:
Overloop, kleine slaap-/werkkamer en ruime berging.
Tuin:
Deze tuin van maar liefst 40 meter diep biedt volop mogelijkheden om van de zon te genieten, te tuinieren of uw eigen buitenparadijs te creëren. De ligging op het zuiden zorgt ervoor dat u het hele jaar door kunt profiteren van het vele zonlicht en privacy.
Bijzonderheden/ overige informatie:
- Wonen op een toplocatie aan een rustige straat te Oosterbeek!
- Duurzaam wonen: de woning is uitgerust met 16 zonnepanelen (energielabel A), wat zorgt voor lagere energiekosten en een kleinere ecologische voetafdruk. De woning is ecologisch verantwoord met 2000L regenwateropvang in de kelder (hydrofoorpomp) en met 1000L afvoeropslag voor toiletten en buiten;
- De de aanbouw van de woning is volgens de normen van 2014 geïsoleerd. In 2024 werden de bestaande muren van de woning voorzien van spouwmuurisolatie;
- Royale tuin:
Techniek:
- Meterkast met 16 groepen en 2 krachtstroom,
- Veel elektrapunten, automatische verlichtingspunten, dimmers en verlichting op ledlampen
- Schilderwerk buiten 2024
Plattegronden
479467_2D_Begane_Grond_Bothaweg_14_Oosterbeek_01.jpg
479467_2D_Eerste_Verdieping_Bothaweg_14_Oosterbeek_02.jpg
479467_2D_Tweede_Verdieping_Bothaweg_14_Oosterbeek_03.jpg
479467_2D_Kelder_Bothaweg_14_Oosterbeek_07.jpg
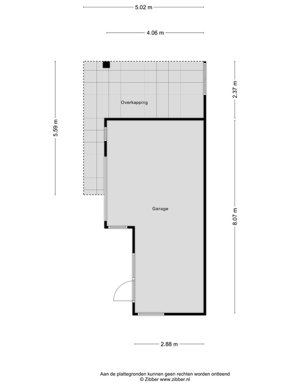
479467_2D_Garage_Bothaweg_14_Oosterbeek_05.jpg