Beschrijving
***Aangemeld voor de statistieken***
Op zoek naar ultieme vrijheid? Dan is deze woonboerderij op 2.475 m² grond het helemaal!
Omgeven door een prachtig groen, rustiek landschap. Het betreft een volledig gerenoveerde halfvrijstaande woonboerderij met een riante overkapping en een prachtig vrij uitzicht over de weilanden. Ook is een groot bijgebouw met garage, een sportruimte en gezellige bar met trap naar ruime zolder aanwezig. De woning heeft een woonoppervlakte van 208 m² en beschikt over 4 slaapkamers op de verdieping én beschikt over een extra slaap/studeerkamer op de begane grond. Het geheel biedt volop mogelijkheden voor werk/hobby aan huis, al dan niet in combinatie met het houden van hobbydieren.
Deze bijzondere, ruimtelijke droomplek is gelegen aan de rand van de buurtschap Homoet. Het sfeervolle centrum van Elst – met onder meer supermarkten, winkels, eet- & drinkgelegenheden, basis- & middelbare scholen, sport-, fitness- & medische voorzieningen en NS-station Elst – laat zich met de fiets en auto in 10-15 minuten bereiken. Binnen enkele autominuten is eveneens de op-/afrit van de A50 (Heteren) bereikbaar. De verbinding met de steden Nijmegen & Arnhem is vanuit hier, zowel met de auto als het openbaar vervoer, uitstekend. Hierdoor combineert Homoet het beste van twee werelden: landelijk wonen met stedelijke voorzieningen vlakbij.
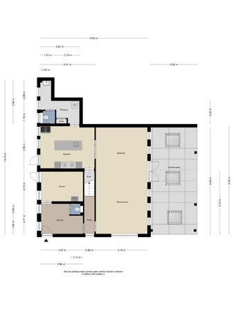
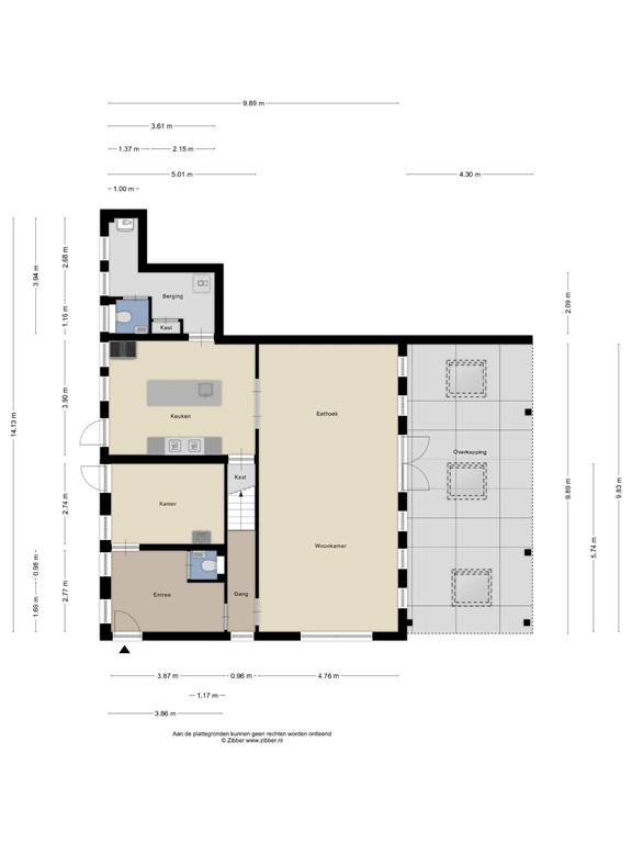
Begane grond:
Via de entree bereikt u een ruime hal met toegang tot een modern toilet. Ook is op de begane grond een extra werk-, hobby- of speelkamer aanwezig. De lichte woonkamer biedt dankzij de vele ramen en openslaande deuren een mooie verbinding met de brede veranda en de royale tuin. Aangrenzend bevindt zich de woonkeuken. Deze luxe keuken is centraal in de woning geplaatst en uitgevoerd met een groot kookeiland met veel werkruimte en uitzicht over de weilanden. Direct naast de keuken ligt een praktische berging/bijkeuken met extra kastruimte, een aparte hoek voor de wasmachine-/droger en een extra toilet.
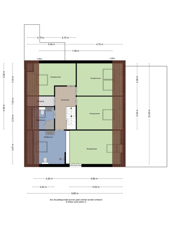
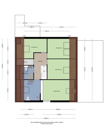
1e Verdieping:
De eerste verdieping heeft een royale hoeveelheid leefruimte met maar liefst 4 ruime slaapkamers. Dankzij de praktische indeling zijn de kamers veelzijdig inzetbaar; ideaal voor een gezin, logees of werken vanuit huis. De overloop vormt het centrale punt van deze etage en geeft toegang tot alle vertrekken, waaronder 2 badkamers. Deze zijn beide ingericht met een douche, wastafel en toilet. Daarnaast is er een extra berging aanwezig.
De diverse dakramen zorgen in alle kamers voor een prettige lichtinval en een rustige, comfortabele sfeer. De dakspanten geven het geheel een bijzondere uitstraling.
Zolder:
De zolderverdieping (ca. 20 m²) is bereikbaar met een vaste trap en is netjes afgetimmerd. Deze ruimte eenvoudig worden ingericht als extra slaapkamer, werkkamer of hobbyruimte. Uiteraard leent de zolder zich ook uitstekend als praktische extra bergruimte.
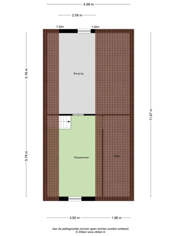
Bijgebouw:
Het ruime bijgebouw van bijna 100 m2 verdeeld over 2 verdiepingen en biedt volop mogelijkheden voor hobby, werk of ontspanning. Het gebouw is momenteel in gebruik als:
- Grote garage met brede toegang en veel opslagcapaciteit
- Een royale multifunctionele ruimte die momenteel is ingericht als bar
- Een tweede multifunctionele ruimte die in gebruik is als privé-sportschool, maar ook prima gebruikt kan worden als atelier, werkplaats of kantoor aan huis.
- Een berging met 5e slaapkamer op de verdieping.
Dankzij de doordachte indeling en het goed bemeten vloeroppervlak is dit bijgebouw een waardevolle aanvulling op het wooncomfort.
Bijzonderheden:
- Gevelisolatie met Neopixels (2021)
- CV Calenta ace 40C cw 5 met Etwist (2024)
Plattegronden
180114415_1595693_homoe_begane_grond_first_design_20251205_f39903.jpg
180114415_1595693_homoe_eerste_verdiepi_first_design_20251205_ea8751.jpg
180114415_1595693_homoe_tweede_verdiepi_untitled_20251205_df097c.jpg
180114415_1595693_homoe_bijgebouw_first_design_20251205_19cfac.jpg
180114415_1595693_homoe_bijgebouw_first_design_20251205_25b0c7.jpg