Beschrijving

Aan de Sweelincklaan 21 in Doorwerth staat deze zeer ruimtelijke en speels opgezette clusterwoning met maar liefst 9 (!) slaap-/werkkamers en 4 badkamers, verdeeld over drie volwaardige, functionele woonlagen. Deze woning ligt aan een gemoedelijk pleintje en werd ten tijde van de bouw op royale wijze uitgebouwd en ligt op een fantastische locatie in de bosrijke en groene omgeving van Doorwerth. Het geheel beschikt over parkeergelegenheid met berging en omliggende tuin. Wonen in Doorwerth betekent rust, natuur en ruimte, gecombineerd met goede lokale voorzieningen en een uitstekende bereikbaarheid met de auto.

Kengetallen bij deze woning:
- Woonoppervlakte 233 m2;
- Inhoud: 709 m3;
- Perceel 244 m2;
- Goed onderhouden gezinswoning met 9 slaap- of werkkamers;
- 4 badkamers; 
- Geïsoleerde spouwmuren, dubbel glas gehele woning, energielabel C

Begane grond:
Entree, L-vormige hal met een grote bijkeuken voorzien van keukenblok en wasmachine aansluiting, twee slaapkamers met ieder een eigen badkamervoorziening (douche en toilet), beide met deur naar de achtertuin. Deze woonlaag leent zich mogelijk ook uitstekend voor een gebruik als gastenverblijf, bij mantelzorg, praktijk aan huis of oudere kinderen die hun eigen ruimte wensen. Multifunctionaliteit is hier het kernwoord!

1e Verdieping:
U komt binnen in een verrassend ruime en lichte woonkamer met houthaard, schouw en toegang tot een riant balkon aan de achterzijde. De open keuken is eveneens ruim van opzet, praktisch ingedeeld en beschikt over een berging met o.a. de CV-opstelling. Daarnaast bevinden zich op deze verdieping een werk-/bergkamer en een kantoor, ideaal voor thuiswerken, studeren of het creëren van extra slaapkamers. De bijzonder ruime indeling geeft deze woonlaag een unieke uitstraling. Via open trap naar:

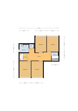
2e Verdieping:
Ruime overloop met toegang tot 4 goed bemeten slaapkamers. Verder zijn hier twee badkamers en een separaat toilet aanwezig, wat deze verdieping uitermate geschikt maakt voor grotere gezinnen.

Ligging:
Doorwerth ligt op en tegen een stuwwal van de Rijn, gevormd in de laatste ijstijd, en wordt gekenmerkt door uitgestrekte bossen zoals de Cardanusbossen. De afwisseling van bebouwing en natuur bepaalt de unieke identiteit van deze woonomgeving. Doorwerth beschikt over een compact maar compleet winkelcentrum voor de dagelijkse boodschappen, Voor een uitgebreider winkelaanbod liggen Arnhem en Wageningen op korte afstand en zijn deze snel en eenvoudig bereikbaar. De ligging van Doorwerth is ideaal voor wie rustig wil wonen, maar toch goede verbindingen belangrijk vindt. De woning ligt gunstig ten opzichte van de A50 en A12, waardoor steden als Arnhem, Nijmegen, Utrecht en Ede uitstekend bereikbaar zijn.

Kenmerken