Beschrijving

Aan de rand van het Immerloo Park, midden in de natuur ligt deze recentelijk gerenoveerde helft van dubbele woning met ruime oprit en berging. Deze woning biedt u 179 m2 aan functionaliteit, volume en luxe. Dit is zoals comfort eruit kan zien! Met een energielabel A (epa) voldoet het huis weer volledig aan de eisen van deze tijd. De grote uitgebouwde woonkamer, een fijne keuken en vier ruime slaapkamers maken het plaatje helemaal compleet. Een vijfde slaapkamer op zolder kan overigens eenvoudig gerealiseerd worden. Bijzonder zijn ook het heerlijke dakterras en fraaie tuin aan voor- en achterzijde. Het geheel is gelegen in de wijk Holthuizen aan een rustige doodlopende straat, omgeven door mooie hoge bomen. Dichtbij winkels, scholen, openbaar vervoer en uitvalswegen op korte afstand!

Dit moderne woonhuis stamt uit 1998, bevindt zich aan een weg met alleen bestemmingsverkeer aan de rand van Arnhem en Huissen. Vanuit de woning loop je direct de natuur in. Met de fiets bereik je winkelcentrum Vredenburg in 3 minuten, winkelcentrum Kronenburg in 7 minuten en de bruisende binnenstad in 15 minuten. Het huis ligt slechts een paar auto-minuten van de N325 en A325. 

Begane grond:
Entree/ruime ontvangsthal met meterkast e.d, ruime berging die ook van buitenaf bereikbaar is, modern toilet met fontein, fraaie (wentel-)trap naar de 1e verdieping, toegang naar een royale woonkamer met schuifpui en meerdere ramen en gezellige hoekjes om in te richten. Wat een ruimte! De ruimte geeft veel licht inval en ademt een gezellige, moderne sfeer uit. Bijzonder fraai is het stalen kozijn met taats draaiende deuren met toegang tot een ruime werk-/kantoorkamer op de begane grond. Ook de vernieuwde keuken maakt indruk. Het geheel is ruim van opzet en beschikt over diverse inbouwapparatuur. Ook is hier een verdekt opgestelde ruimte (bijkeuken) bereikbaar.

De hal en woonkamer/ keuken zijn voorzien van vloerverwarming en afgewerkt met een fraaie PVC-vloer in visgraat gelegd.

1e verdieping:
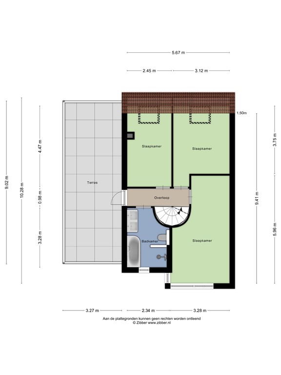
Ruime overloop met toegang naar een enorm dakterras op deze woonlaag met veel privacy en uitkijk over het groen. Dit is echt bijzonder! Ook bevinden zich drie slaapkamers en de moderne badkamer (2020). Alle slaapkamers zijn royaal in opzet en voorzien van een strakke vloer. Aan lichtinval is geen gebrek, want in iedere kamer is een groot raam aanwezig. De badkamer is in 2020 vernieuwd en fraai afgewerkt met een ligbad, badmeubel met dubbele wastafel, designradiator, inloopdouche met regendouche en een zwevend toilet. Via vaste trap naar:

2e verdieping
De tweede verdieping is zeer royaal opgezet. Hier bevinden zich de aansluiting voor wasmachine- en droger. Op dit moment is er in deze ruimte een extra werkplek die eenvoudig omgebouwd kan worden tot een vijfde slaapkamer. Vanuit die verdieping is er toegang tot de 4e slaapkamer met vaste kast en dakraam.

Tuin:
In de besloten, mooi aangelegde onderhoudsvriendelijke achtertuin is het genieten! De tuin is voorzien van sfeervolle LED- verlichting. De achterzijde grenst aan een groene ecologische wal, waar reeën geregeld gezien worden. Het is een rijk voor vogels en naast de grote bonte specht is het roodborstje een vaste gast op de voedertafel. Zowel de voor- als achtertuin zijn voorzien van een irrigatie systeem. De daaraan gekoppelde pomp, pompt het grondwater uit de puls die in de tuin achter aanwezig is. Desgewenst kan de pomp met een App vanaf je mobiel bediend worden. Verder bevindt zich in de tuin een hout gestookte pizza-oven met toebehoren en een houtopslag. De schuifpui is eveneens uitgerust met een op afstand bedienbaar knikarmscherm.

Op het dak van de 2e verdieping bevinden zich 8 zonnepanelen, en deze zijn eveneens controleerbaar met een App.

Kenmerken behorende bij de woning:
•	Charmante woning met heerlijke tuin
•	Royaal dakterras aanwezig
•	Volledig geïsoleerd en 8 zonnepanelen
•	Elektrisch zonnescherm op dakterras en aan de woonkamer
•	elektrisch bedienbare windowscreens aan voorzijde
•	Parken, winkels en scholen allemaal op loopafstand!
•	Uitvalswegen goed bereikbaar
•	Energielabel: A

Kenmerken