Beschrijving

Te huur – Moderne bedrijfsunit met kantoor en parkeergelegenheid

Op een uitstekend bereikbare en representatieve locatie op bedrijventerrein Poort van Midden-Gelderland Zuid in Heteren bieden wij deze nette en multifunctionele bedrijfsunit met kantoor en drietal parkeerplaatsen op eigen terrein te huur aan. Het pand is in 2009 gebouwd en in 2013/2014 volledig gerenoveerd en gemoderniseerd. Het geheel maakt onderdeel uit van een bedrijfsverzamelgebouw. Ideaal voor kantoor, dienstverlening, lichte productie of een combinatie van bedrijfs- en kantoorgebruik.

Kenmerken en indelingsmogelijkheden:
Bouwjaar: 2009
Laatste renovatie: 2013/2014 (volledige inrichting en afwerking)
Totale vloeroppervlakte: ca. 220 m² BVO / ca. 210 m² VVO

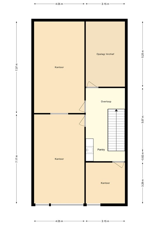
Begane grond: 
Entree met representatieve hal/bedrijfsruimte (ca. 14,43 × 7,20 m ≈ 104 m²), toilet, automatische roldeur, heater, opstelplaats voor cv-installatie en trap naar de 1e verdieping.

Eerste verdieping: 
Ruime overloop met keukenblok (ca. 6,00 × 3,15 m) en vier separate kantoorruimten waarvan 3 met airco-installatie en spot verlichting:
Achterzijde: 5,20 × 3,15 m en 7,40 × 4,05 m
Voorkant: 7,15 × 4,05 m en 3,25 × 3,15 m
Parkeren: 3 parkeerplaatsen op eigen terrein + mogelijkheid voor extra parkeerplaatsen aan de (rechter-)zijkant

Bouwkundige kwaliteit en voorzieningen:
Betonfundering op palen, betonconstructie met geïsoleerde grijze gevelplaten
Aluminium kozijnen met dubbel glas
Begane grond: glad afgewerkte betonvloer (max. vloerbelasting: 2.000 kg/m²)
Verdieping: systeemplafond met armaturen, laminaatvloer
Verwarming: CV-installatie met radiatoren (kantoor) en gasheater (bedrijfsruimte)
Plat dak met bitumineuze dakbedekking
Instap klaar en verzorgd afgewerkt object

Locatie en bereikbaarheid:
Heteren ligt strategisch ten zuiden van Arnhem, direct aan de A15 (knooppunt Valburg) en nabij de A50. Uitstekende verbindingen richting Nijmegen, Arnhem, ’s-Hertogenbosch en verder. Het bedrijventerrein biedt een professionele uitstraling met gevarieerde bedrijvigheid.

Gebruiks- en bestemmingsmogelijkheden:
Huidig gebruik: kantoor-/bedrijfsruimte
Zeer breed inzetbaar: diverse bedrijfsbestemmingen mogelijk (check bestemmingsplan/ gemeente Overbetuwe)

Huurcondities:
Huurprijs: € 23.700,- per jaar excl. BTW 
Servicekosten: nader op te geven (o.a. reservering onderhoud, glasverzekering e.d.)
Huurtermijn: in overleg, minimaal 2–5 jaar
Huurbetaling: per maand vooruit
Beschikbaar: per direct 

Deze unit is direct bruikbaar, goed onderhouden en biedt een representatieve en praktische werkplek op een bekende toplocatie – perfect voor ondernemers, ZZP’ers met personeel of groeiende bedrijven die snel willen huisvesten zonder grote investeringen.

Geïnteresseerd?
Neem contact op voor meer informatie, bezichtiging of de volledige verhuurvoorwaarden. Bezichtiging uitsluitend op afspraak.

Kenmerken